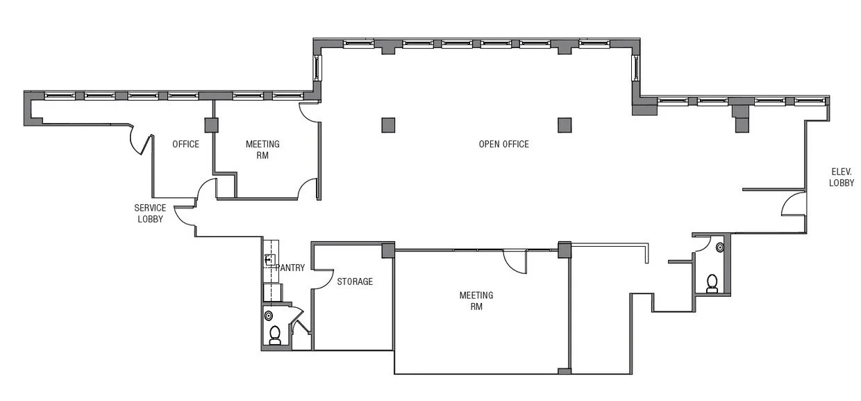
Space: Suite 1100

Size: 3,750 SF

Rent: $35/SF

Term: 3-10 Years

Electric: Direct

Comments: Fully furnished office space. Move in condition.

Click Here For Virtual Tour